ул. Дубининская, Даниловский р-н
Дом А
Недвижимость бизнес-класса
4 кв. 2027 года
метро Павелецкая
от 21 570 000 руб.
Жилой комплекс состоит из 12 разноэтажных секций высотой до 23 этажей и выполнен в стиле современного американского традиционализма. Трехчастный фасад облицован натуральным камнем, кирпичом, металлом и архитектурным бетоном. Центральный элемент ансамбля — выразительная 23-этажная башня. Ее обрамляют две симметричные невысокие секции, замыкающие квартал
Жилой комплекс находится в Даниловском районе, на Дубнинской улице, в 20 минутах пешком от метро «Павелецкая».
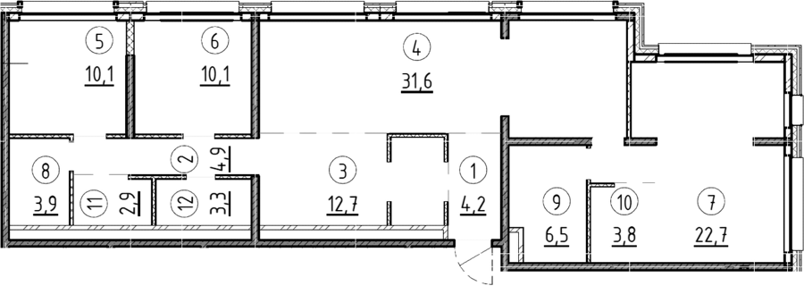
ТИПОВЫЕ ПЛАНИРОВКИ ОБЪЕКТОВ
2-комнатные
Площадь от 58.8 м2
от 43.840.000 руб
3-комнатные
Площадь от 84.5 м2
от 59.880.000 руб
4-комнатные
Площадь от 106.9 м2
от 78.380.000 руб
Студия
Площадь от 26.4 м2
от 21.570.000 руб
1-комнатные
Площадь от 33.6 м2
от 29.560.000 руб
Дом А ЭТО

В комплексе спроектировано одноэтажное парадное лобби с зоной ресепшен, большими витражами, переговорными комнатами, зеленой террасой на крыше и большим навесом, ведущим до места остановки такси.

Весь первый этаж дома спроектирован как клуб для жителей, где можно встретить гостей, поработать, отдохнуть в тишине и поиграть с детьми. На крыше лобби спроектированы общественные террасы с зимним садом и чайной. В вестибюле будут работать консьерж-сервис, игровая, рядом с главным лобби размещена детская комната. А со стороны двора общественная гостиная — помещение для мероприятий с кухней и санузлом. Подъезды — сквозные, без ступеней, с высокими и прозрачными входными группами, с домофоном в теплом тамбуре.

На первом этаже каждой секции предусмотрены колясочные, а уровнем ниже размещены техпомещения с креплениями для велосипедов.

В комплексе предложен широкий выбор планировочных решений: в наличии квартиры как классического типа, так и европланировки. Есть и уникальные форматы: двухуровневые квартиры, квартиры с видовыми террасами и пентхаусы. Все квартиры сдаются с подчистовой отделкой.

Комплекс имеет два приватных двора. Первый — гостевой, с зонами для отдыха под открытым небом. Второй — более традиционный, с детскими, игровыми и спортивными площадками.

На эксплуатируемых кровлях размещены общественные пространства. В инфраструктуру проекта входят 2 павильона с кафетерием и детским клубом, фитнес-студия, ресторан и винотека.

Для владельцев автомобилей в комплексе предусмотрен подземный паркинг.
ПОПУЛЯРНЫЕ ОБЪЕКТЫ С
ОТКРЫТЫМИ ПРОДАЖАМИ
Дом ДАУ

ЖК Sity BAY

Обручево 30

Квартал МОНС

ЖК Архитектор

Amber City

High life

ЖК Slava

Жилой комплекс OPUS

Жилой Комплекс SET

Квартал Метроном

Прокшино

ЖК Скандинавия

Новые смыслы

Бунинские кварталы

Жилой Комплекс ДЕТАЛИ

Квартал Герцена

НЕ НАШЛИ ПОДХОДЯЩЕЕ?
Укажите параметры недвижимости, и мы подберем варианты в течение дня бесплатно